
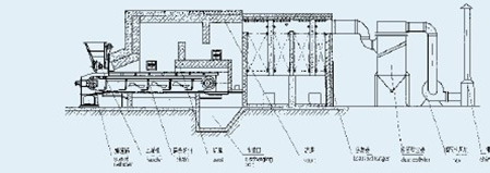
В высокотемпературных угольных тепловых печах серии JRML используются механические цепные печи для сжигания угля, а теплообменники могут использовать теплообменники, такие как высокотемпературные пластины, трубы и тепловые трубы. Он имеет преимущества высокой выходной температуры, высокой тепловой ценности и высокой тепловой эффективности и может готовить чистый горячий ветер при температуре 100 - 550°C. Технические показатели оборудования достигли отечественного технического уровня, широко используются в химической, пищевой, минеральной продукции, строительных материалах и других отраслях промышленности. Он может использоваться в качестве источника тепла для нагрева, сушки, выпечки и тепловых стереотипов и может использоваться в сочетании с различными сушильными устройствами.

◆ Использование цепной решетки печи, толщина угля равномерно регулируется, полное сгорание, высокая тепловая эффективность;
◆ Автоматическая загрузка угля для удаления шлака, простая операция, низкая трудоемкость;
◆ Использовать конструкцию телескопического шва, чтобы избежать повреждения, вызванного тепловым расширением, и продлить срок службы;
◆ Выбросы дымовых газов с использованием многотрубных пылеуловителей, отвечающих экологическим требованиям。

Предыдущая статья:Высокотемпературные угольные печи серии GMF
Следующий пост:Башня для переработки алкоголя